Birrer Immobilien AG

3.5 Zimmer Wohnung
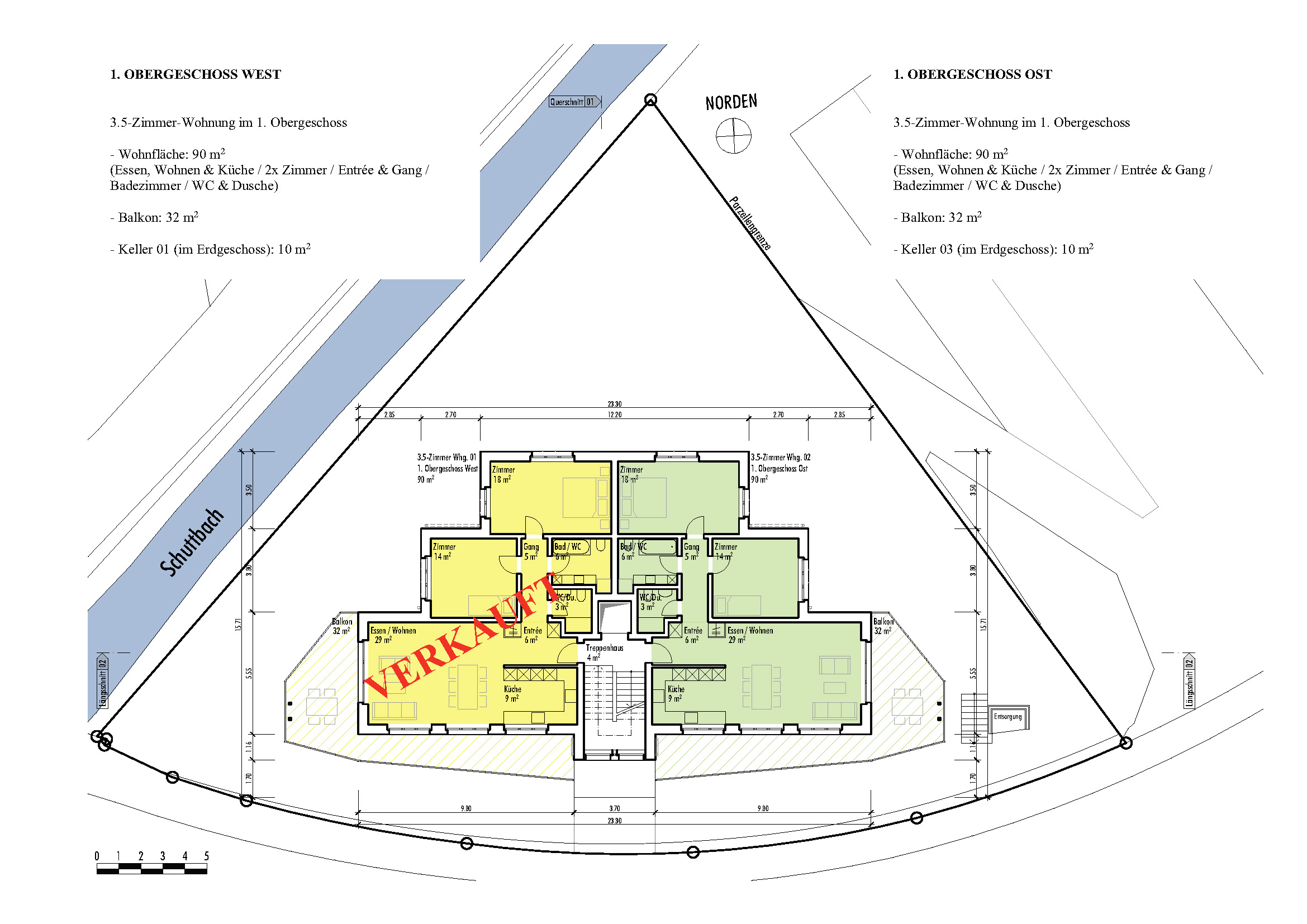
1. OG - OST

Beschreibung

Diese 3.5-Zimmer-Neubauwohnung befindet sich im 1. Obergeschoss in Ostlage und bietet einen gut durchdachten Grundriss mit einem grosszügigen Balkon. Die Wohnung ist Teil eines Neubauprojekts mit geplantem Baustart im Jahr 2026 und voraussichtlichem Bezug im Herbst 2027. Gedeckte sowie ungedeckte Parkplätze stehen zur Verfügung und können zusätzlich erworben werden.

Alle notwendigen Informationen wie Lage, Raumeinteilung, Baubeschrieb, etc. können dem Verkaufsprospekt entnommen werden. 

Details

Adresse

Bergstrasse 37, 6410 Goldau

Preis

1’065’000 CHF

Kosten

Preis

1’065’000 CHF

Nettomiete

1’200 CHF/Monat

Nebenkosten

200 CHF/Monat

Bruttomiete

1’400 CHF/Monat

Bezug

voraussichtlich Herbst 2027

Wohnfläche

89 m2

Zimmer

3.5

Balkon

32 m2

Keller 03 

10 m2

Stockwerk

1. OG (Ost)

Baujahr

2026-2027

Zustand

Neubau

Eigenschaften

Balkon

Keller

gedeckter Parkplatz (muss dazu gekauft werden) 

Kinderspielplatz / Erholungs- und Rasenfläche

Abstellfläche für Velo und Mofa

Personenlift

Genauere Informationen können der Verkaufsdokumentation entnommen werden.

Kontaktieren Sie uns

Name