Birrer Immobilien AG

4.5 Zimmer Wohnung
Attika

Beschreibung

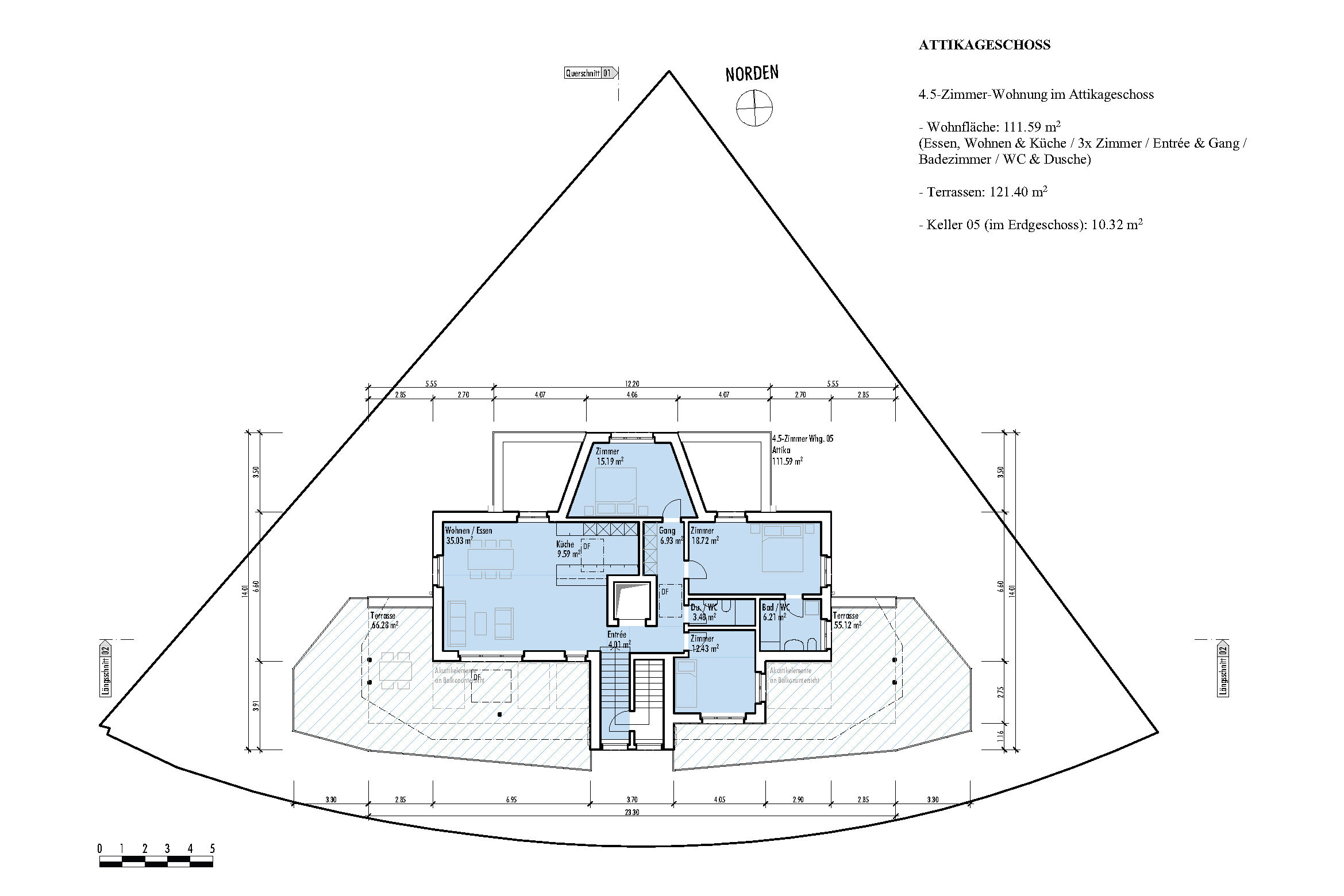
Diese 4.5-Zimmer-Neubauwohnung befindet sich im Attikageschoss und bietet einen gut durchdachten Grundriss mit einer grosszügigen Terrasse. Die Wohnung ist Teil eines Neubauprojekts mit geplantem Baustart im Jahr 2026 und voraussichtlichem Bezug im Winter 2027. Gedeckte sowie ungedeckte Parkplätze stehen zur Verfügung und können zusätzlich erworben werden.

Alle notwendigen Informationen wie Lage, Raumeinteilung, Baubeschrieb, etc. können dem Verkaufsprospekt entnommen werden.

Details

Adresse

Bergstrasse 37, 6410 Goldau

Preis

Preis auf Anfrage

Kosten

Preis

1’750’000 CHF

Nettomiete

1’200 CHF/Monat

Nebenkosten

200 CHF/Monat

Bruttomiete

1’400 CHF/Monat

Bezug

voraussichtlich Winter 2027

Wohnfläche Netto

124 m2

Zimmer

4.5

Terrasse

124 m2

Keller 05 

10 m2

Stockwerk

Attikageschoss (3. OG)

Baujahr

2026-2027

Zustand

Neubau

Eigenschaften

Terrasse

Keller

gedeckter Parkplatz (muss dazu gekauft werden) 

Kinderspielplatz / Erholungs- und Rasenfläche

Abstellfläche für Velo und Mofa

Personenlift

Genauere Informationen können der Verkaufsdokumentation entnommen werden.

Kontaktieren Sie uns

Name